Kajen – Norra Strandgatan och Centralbron

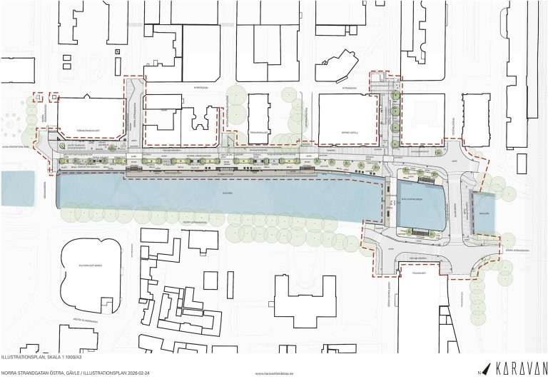
Vi renoverar den 150 år gamla stenmurskajen mellan Rådmansbron och Murénbron i centrala Gävle utmed Norra Strandgatan, samt en mindre sträcka utmed Södra Strandgatan mellan Murénbron och Centralbron.

Om projektet

Kort fakta

Projekt: Stadsutveckling | Parker och torg | Gata och trafik | Gång och cykel | Vatten och broar

Status: Planerad

Område: Centrala Gävle.

Projektledare: Kai Olsson

I projektet ingår också att bygga om Centralbron, som är en gång- och cykelväg. Syftet är att göra området säkert, tryggt och attraktivt för alla trafikslag. Vi anpassar området runt Gavleån till en modern samhällsplanering.

Det här gör vi

  • Vi bygger om och förstärker den 305 meter långa kajen med en ny grundläggning av en betongplatta som vilar på stålpålar och stålspont.
  • Vi bygger om väg-/cykelbanan på Norra Strandgatan och Centralbron samt del av Södra Strandgatan – från kaj till fastigheter utmed sträckan.
    Den totala sträckan är 330 meter.
  • Vi gör området mer attraktivt genom att skapa plats för bredare gång- och cykelbanor och fler sittplatser.
  • Vi anlägger träbrygga på ca 130 m med sittplatser utmed kajens norra sida så att Gävleborna kan komma närmare vattnet.
  • Träden längs Gavleån (lindar som är 120-140 år) tas ner för att ge plats åt den nya kajen. Träden har ett högt värde och kommunen undersöker hur materialet kan tas tillvara och om det är möjligt att flytta träd till annan plats.  Nya träd ska planteras på samma plats inom fem år.
  • Vi utför schaktarbete, pålning och spontning. Stenarna återanvänds så att kajen får samma gestaltning som tidigare.
  • Centralbron ska byggas om och blir 10 meter bred mot dagens 3,5 meter. Det blir separata gång- och cykelvägar och sittplatser på bron. Konstverket ”Sjömansmonumentet” (tre ankare från Briggen Gerda) flyttas.
  • Under Centralbron går en fjärrvärmekulvert. En ny fjärrvärmeledning byggs under den nya bron.

Tidplan

Ombyggnationen startar i maj 2028 och arbetet beräknas klart november 2030.

Så påverkar det området

Begränsad framkomlighet

Norra Strandgatan mellan Murénbron och Rådmansbron är avstängd under hela byggtiden. Under tiden kan det bli förändringar som påverkar hur du tar dig fram.

Det här behöver du tänka på:

  • Vägar samt gång- och cykelbanor kan tillfälligt stängas av eller få ny sträckning
  • Trafiksignaler i området kommer att vara avstängda
  • Följ skyltar och tillfälliga anvisningar på plats

Reser du med buss?

  • Bussar kan köra andra vägar
  • Tillfälliga hållplatser kan förekomma

Mer information om kollektivtrafiken kommer från X‑trafik.

Frågor och kontakt

Har du frågor om projektet är du välkommen att kontakta oss.

Vår kundtjänst

Adress

Drottninggatan 22, 803 11 Gävle

Telefon

026-17 80 00

Öppettider

Måndag–fredag

8.00 – 17.00

Uppdaterades: 14 april 2026

Fick du hjälp av informationen på sidan?

Här kan du lämna synpunkter på sidans innehåll. Det hjälper oss att göra webbplatsen bättre.

Tack för din synpunkt!

Hur kan vi förbättra innehållet på sidan?

Beskriv vad du saknar eller vad du tycker inte stämmer. Vi har inte möjlighet att svara på dina synpunkter. Kontakta kundtjänst om du har frågor. Uppge inte några personuppgifter.