Området Magasinen

Vi vill att Magasinen ska vara en inbjudande, trygg och attraktiv plats för både näringsliv och besökare. Här kan du ta del av information under projektets gång.

Om projektet

Kort fakta

Projekt: Stadsutveckling | Parker och torg

Status: Pågående.

Område: Magasinen, Alderholmen.

Projektledare: Peter von Reedtz.

Syftet är att utveckla området till ett levande, mysigt kvarter, att besöka och verka i. Vårt fokus i projektet är hållbarhet och kulturhistoria.

Visionen är att skapa förutsättningar för ett inbjudande och myllrande område med genomtänkt belysning och ett tilltalande gaturum som knyter ihop staden.

Projektet finns med i investeringsplanen som antogs i samhällsbyggnadsnämnden den 25 januari 2023.

Det här gör vi

  • Lägger markvärme på gatorna.
  • Bygger ett torg för bland annat evenemang och umgänge.
  • Sittplatser.
  • Tydligare entréer till området.
  • Bättre belysning.
  • Företräde för gående. Bilar får passera men lämna företräde till gående.
  • En gata som är tillgänglighetsanpassad för alla, oavsett funktionsnedsättning.
  • Utsmyckar allmän plats.
  • Norra Skeppsbron blir en lågfartsväg.

Tidplan

Vi uppdaterar tidplanen under projektets gång.

Pågående aktiviteter

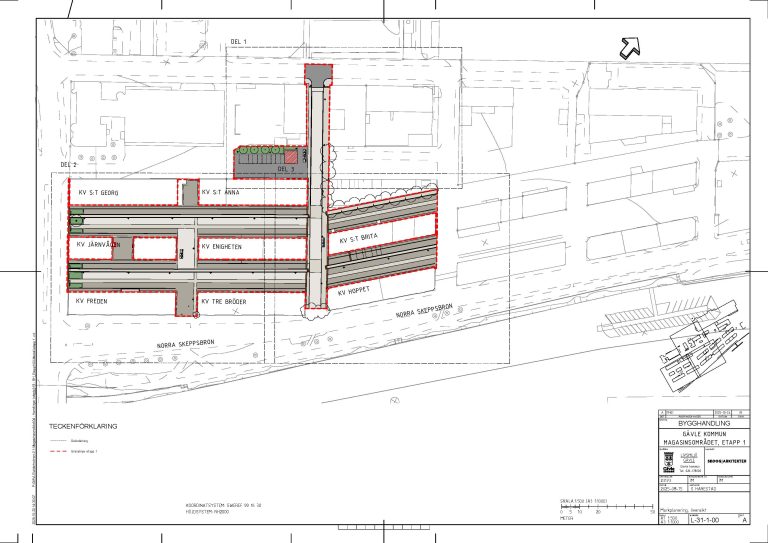
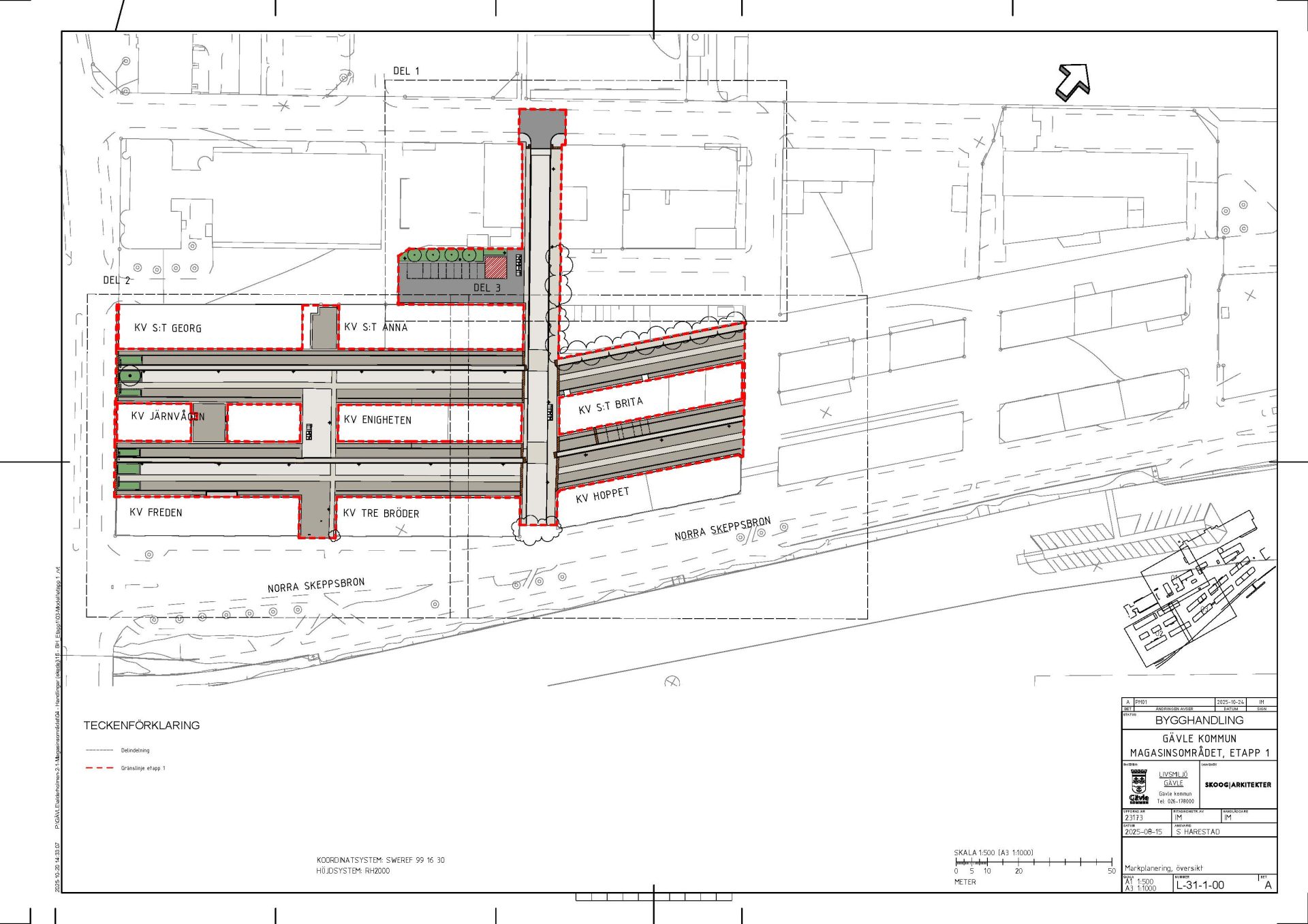
2026: Vi arbetar i etapp 1 (området som ingår i etapp 1 är gulmarkerat i kartan i galleriet). Just nu pågår markarbeten av olika slag. Etapp 1 beräknas vara klar under hösten 2026.

Kommande aktiviteter

  • 2026: Påbörja ombyggnation för området inom etapp 2.
  • 2027: Arbetet förväntas vara klart.

Genomförda aktiviteter

  • 2025: Återstartande av byggandet inom etapp 1.
  • 2024: Förberedande markarbete.
  • 25 januari 2023: Investeringsplanen antogs i samhällsbyggnadsnämnden.

Så påverkar det området

För att området ska kunna hålla öppet under hela ombyggnationen kommer projektet genomföras i olika etapper.

  • Delar av Norra Skeppsbron kommer att vara avstängd i vissa perioder under projektet. Det kommer vara möjligt att ta sig fram via exempelvis Södra Skeppsbron och Alderholmsbron.
  • Befintliga verksamheter kommer vara öppna som vanligt under projekttiden.
    • Entréer kommer vara tillgängliga men det kan stå byggställningar och stängsel i anslutning och runt ingången.

Du kan prenumerera på Diös nyhetsbrev, för att få uppdaterad och aktuell information om området och byggnationen.

Frågor och kontakt

Har du frågor om projektet är du välkommen att kontakta oss.

Vår kundtjänst

Adress

Drottninggatan 22, 803 11 Gävle

Telefon

026-17 80 00

Öppettider

Måndag–fredag

8.00 – 17.00

Aktuellt för området Magasinen

Aktuella arbeten och avstängningar i Gävle

Uppdaterades: 8 maj 2026

Senast faktagranskad: 25 juni 2025

Fick du hjälp av informationen på sidan?

Här kan du lämna synpunkter på sidans innehåll. Det hjälper oss att göra webbplatsen bättre.

Tack för din synpunkt!

Hur kan vi förbättra innehållet på sidan?

Beskriv vad du saknar eller vad du tycker inte stämmer. Vi har inte möjlighet att svara på dina synpunkter. Kontakta kundtjänst om du har frågor. Uppge inte några personuppgifter.